Dumfries Place, Brynmawr, Ebbw Vale, Blaenau Gwent, NP23 4RA

Dumfries Place, Brynmawr, Ebbw Vale, Blaenau Gwent, NP23 4RA
Starting Bid
£90,000









This three double bedroom end terrace house set on Dumfries Place in Brynmawr is a fantastic buy with space galore, great layout plus a double rear extension giving the property a brilliant amount of space throughout.
The property has a first floor modern shower suite and has had a lot of money spent on improvements over the Years, with a new flat roof installed in 2024, a new combination condensing boiler fitted and modern fitted kitchen.
Ground Floor
Entrance Porch
Open Plan lounge/dining Room
Open Plan lounge/dining Room
21′ 11” x 14′ 1” (6.7m x 4.3m)
Open Plan Fitted Kitchen/Dining Room
Open Plan Fitted Kitchen/Dining Room
20′ 4” x 9′ 2” (6.2m x 2.8m)
First Floor
Landing area
Bedroom 1
12′ 9” x 11′ 9” (3.9m x 3.6m)
Bedroom 2
10′ 2” x 8′ 2” (3.1m x 2.5m)
Bedroom 3
9′ 10” x 9′ 2” (3m x 2.8m)
Modern shower suite
7′ 10” x 5′ 10” (2.4m x 1.8m)
Summary
- Property Type: End of terrace house
- Bedrooms: 3
- Receptions: 1
- Tenure: Freehold
- Heating: Gas
- Parking: On Street
- EPC: D
Pant-y-Fforest, Ebbw Vale, Blaenau Gwent, NP23 5FR

Pant-y-Fforest, Ebbw Vale, Blaenau Gwent, NP23 5FR
Starting Bid
£450,000












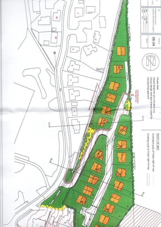
We are pleased to offer to auction this development site measuring approximately 4 acres (1.7 hectare) outline planning has been granted for the development of 21 detached dwellings, however this could be increased to more than 30 if required, STPP. Additionally the site has full planning in place for an access road into the development.
The site occupies an elevated position with wonderful views across the surrounding countryside and Valleys and towards Ebbw Vale and is situated close to other executive properties and a development of bungalows and executive detached dwellings.
The area benefits from an excellent range of amenities and shopping facilities, schools and access to the A470 Heads of the Valley link road to Merthyr Tydfil and Abergavenny. The town of Ebbw Vale has enjoyed a good level of regeneration and development over the last few years, including re development of the the former steelworks site and prior to that The Festival Park shopping centre. There is also a direct rail line to Cardiff.
Please note: We have not inspected this site.
Summary
- Property Type: Land & Development
- Tenure: Freehold
- Parking: Allocated
Location
The subject site is well located along Pant y Fforest. The subject site is located approximately 0.9 miles from Ebbw Vale town centre and approximately 22.2 miles from Newport city centre.
Site Details
Development site measuring approximately 4 acres with planning for development of 21 detached dwellings, the current owners have stated this could be increased to 34 dwellings if required subject to change of planning application and has full planning in place for an access Road into the development.
Tenure
FREEHOLD. TITLE NUMBER: CYM277800
FREEHOLD. TITLE NUMBER: WA871592
FREEHOLD. TITLE NUMBER: CYM506114
FREEHOLD. TITLE NUMBER: WA715202
FREEHOLD. TITLE NUMBER: CYM277623
Planning Permission
Outline planning approval has been granted for the development of 21 dwellings currently.
Please refer to local authority (Blaenau Gwent) and legal pack for further information.
Planning application number C/2009/0394
